Home
Architecture
Architectural Photo
Portraits
Street Photography
Art Work
Contact
More
Steevenson Jean Louis
Home
Architecture
Architectural Photo
Portraits
Street Photography
Art Work
Contact
More
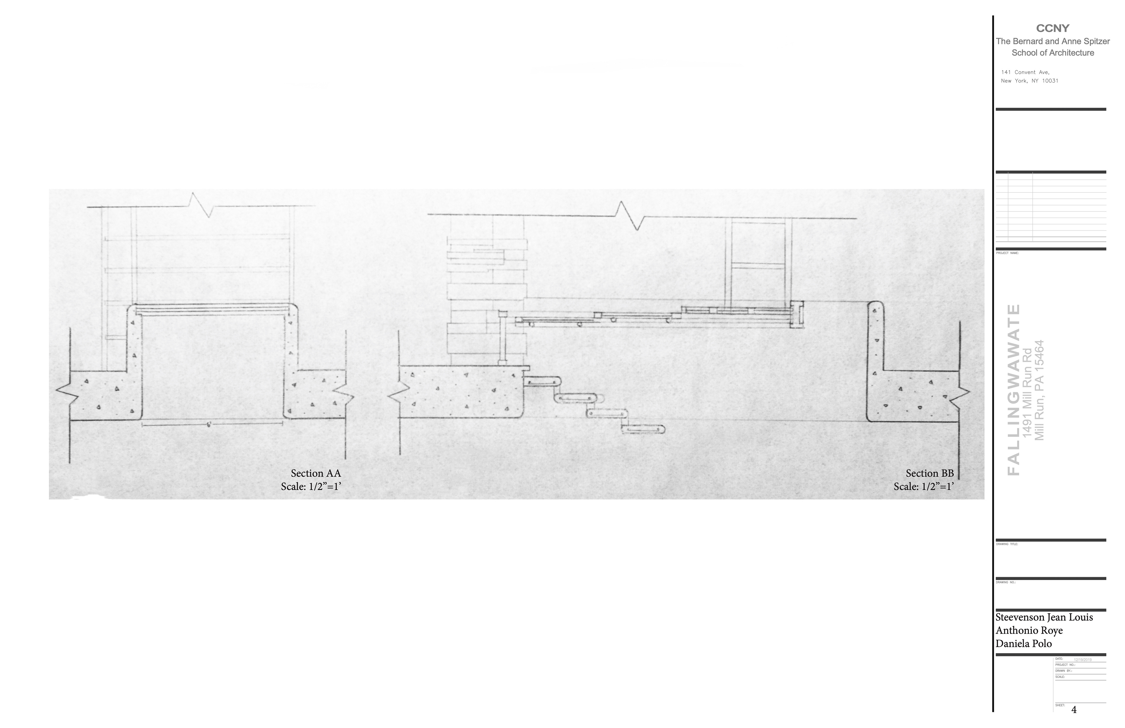
 Hand draft construction documents
Back to Gallery
↑Back to Top